作者:上海快租浏览:0发布时间:2025-11-07
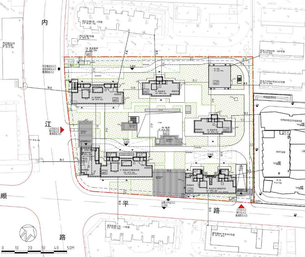
根据公示内容,该项目定位中高端住宅产品,规划建设 5 栋 14-26 层商品住宅及 1 栋 8 层保障性租赁用房,所有住宅均设置局部架空层,小区中央将打造下沉庭院,进一步优化居住体验。从具体楼栋规划来看:
2#、7# 为 26 层商品住宅(含配套用房),其中 7# 一层设有社区卫生服务点;
3#、6# 为 16 层商品住宅(含配套用房),6# 一至二层规划物业、业委会办公区域及智能快递柜;
5# 为 14 层商品住宅;

8# 为保障性租赁住房,一层同样配置社区卫生服务点。
景观与配套方面,项目设计多个景观架构,最大楼间距可达约 43 米,搭配中央下沉庭院,有效提升社区通透感与生态氛围。根据地块出让文件要求,项目装修标准不低于 4000 元 / 平方米(集采价),同时需配建 150 平方米社区卫生服务点,全面满足居民基础生活需求。该地块出让面积 14958.66 平方米,容积率 2.5,建筑限高 80 米,整体规划契合区域高端住宅定位。
年内二度落子杨浦滨江 保利置业深耕板块决心凸显
值得注意的是,这是保利置业 2025 年在杨浦滨江区域斩获的第二宗住宅用地。此前在上海第四批次土拍中,该企业便以 80199 元 / 平方米的楼面价拿下保利誉滨江项目,短期内连续布局彰显其对杨浦滨江板块的长期看好与深度深耕战略。
从成本与市场预期来看,结合 69958 元 / 平方米的楼板价测算,该项目保本价格预计在 10 万 - 10.5 万元 / 平方米区间,未来售价有望达到约 11 万元 / 平方米。依托 2.5 的容积率与 80 米限高,项目大概率将打造高层或小高层产品,届时将与周边在售的外滩源著复兴里(住宅均价约 10.9 万元 / 平方米)形成直接市场竞争,凭借产品规划与品牌优势争夺客群。
区位优势显著 杨浦滨江成中产滨江住宅热门选择
该项目所处位置具备多重区位优势:地处杨浦区内中环之间,距离地铁 12 号线爱国路站仅约 400 米,轨道交通出行便捷,周边商业配套、城市干道及隧道交通网络成熟完善。同时,地块紧邻 “爱国路三兄弟”(保利珑誉、龙光天境、杨浦滨江壹号)成熟居住圈,居住氛围浓厚。
更值得关注的是,项目位于《上海市黄浦江滨江中北段专项规划》范围内,距离核心控规编制区直线距离不足 1 公里。尽管并非一线滨江地块,但借助成熟的交通配套与前瞻性的区域规划,项目核心竞争力进一步提升。
近年来,随着 B 站、美团等企业总部项目陆续建成投用,杨浦滨江区域城市界面加速更新,产业导入成效显著,配套设施持续完善。在板块价值不断攀升的背景下,这里正逐渐成为中产客群入手滨江住宅的热门选择,也为保利置业该项目的后续去化提供了良好的市场基础。